Видеоурок по монтажу натяжного потолка. Как снять размеры натяжного потолка
- Видеоурок по монтажу натяжного потолка. Как снять размеры натяжного потолка
- Установка натяжных потолков до или после обоев. Потолки и обои: правила очередности
- Натяжной потолок. №1. Натяжные потолки: преимущества и недостатки
- Монтаж натяжного потолка своими руками. Содержание:
- Пошаговый монтаж натяжных потолков. Методы крепления натяжного полотна.
- Монтаж натяжного потолка со скрытым карнизом. Установка
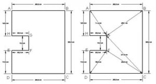
Видеоурок по монтажу натяжного потолка. Как снять размеры натяжного потолка
Чтобы снять размеры будущего потолка нужен лазерный уровень. Потому что этот инструмент даёт более точные измерения, ведь погрешность допустима лишь в пределах полсантиметра и не более. Хорошо, если площадь комнаты прямоугольная или квадратная — четыре угла и без дополнительных отклонений на трубы и ниши. Но на практике не бывает абсолютно прямых углов.
Поэтому нужно сделать чертёж потолка: вид сверху и указать все углы. Измерять все расстояния следует в сантиметрах. Обозначения на чертеже будущего потолка делаются латинскими буквами. Замеры нужно производить по часовой стрелке. На чертеже необходимо максимально точно обозначить расположение труб, выступов, дверей, перегородок, арок, ниш и окон.
Указать расположение оконного проёма нужно для того, чтобы при создании полотна натяжного потолка, мастера правильно выполнили сварные швы. Тогда они не будут заметны ни при искусственном, ни при дневном освещении.
Это основные требования при выполнении замеров. Они подходят для создания чертежа одноуровневого потолка. Для выполнения замеров многоуровневого или многоярусного потолка нужно знать специальные формулы, по которым производится расчёт площади каждого участка.
Раскрой полотно натяжного потолка выполняет специальная программа. Она производит эту работу по тем точным результатам замеров, который вы произвели ранее. Итак, мы выполнили два первых подготовительных этапа. Заказываем полотно потолка и переходим к монтажу профиля (багета) для его крепления.
Установка натяжных потолков до или после обоев. Потолки и обои: правила очередности
Специалисты рекомендуют следующий порядок ремонта:
- выравнивание стен при помощи штукатурки, шпаклевки и грунтовки;
- тщательное просушивание стен (на это уйдет пара дней);
- монтаж потолков;
- очистка стен от пыли, нанесение противогрибковой пропитки;
- оклеивание комнаты обоями;
- укрепление потолочного плинтуса или бордюра.
Такая очередность объясняется особенностями монтажа потолка. Тепловая пушка повышает температуру в комнате, в результате обои могут вздуться, отклеиться от стен, изменить цвет или покрыться пятнами.
Многое зависит и от материала, из которого сделаны стены. Если они выложены из красного кирпича, не стоит клеить обои до монтажа потолка. При сверлении отверстий под конструкцию на стены осядет цветная пыль, безнадежно портящая покрытие стен. Стены из бетона или белого кирпича позволяют наклеивать обои перед установкой натяжного потолка, пыль им не повредит.
Стоит учесть и квалификацию рабочих, которые будут заниматься потолком. Наемные бригады не всегда бережно относятся к обоям, после работы на них появляются пятна и разрывы. Особенно часто страдают бумажные обои. Винил и флизелин более устойчивы. Наклеивать дорогие покрытия, например, натуральную пробку в виде рулонов, нужно только после установки потолка. Не стоит рисковать качественным покрытием. Пробка без специального защитного слоя отличается пористостью и рыхлостью, сверла и тепловые пушки наверняка испортят ее.
После того, как потолок натянут, обои нужно клеить очень аккуратно, стараясь не сместить опорный каркас. В работе помогут канцелярские ножи и шпатели, которыми можно подрезать края и аккуратно заправить их под каркас. Стыки закрываются плинтусами. Надежнее всего приклеить их на жидкие гвозди, но не к потолку, а к стене. При смене обоев плинтус убирается вместе с ними, а потолок остается неповрежденным.
Натяжной потолок. №1. Натяжные потолки: преимущества и недостатки

Основа натяжного потолка – тонкое и прочное полотно, которое может быть из ткани или поливинилхлорида. Из полотна вырезают необходимый по площади и форме фрагмент и натягивают на заранее установленный каркас. Готовая поверхность получается идеально ровной и аккуратной, а весь процесс монтажа длиться считанные часы. Натяжной конструкцией можно закрыть весь потолок или его часть, расставляя акценты или осуществляя зонирование . Натяжной потолок может быть многоуровневым , а уж разнообразие цветов и фактур и вовсе не перечислить. Особенно эффектно конструкция смотрится в комбинации с точечным и светодиодным освещением.
Несмотря на широкое разнообразие, все натяжные потолки обладают такими общими преимуществами:
- рекордно быстрый монтаж . Обычно процесс длится 2-3 часа, но установка многоуровневых конструкций может занять 5-6 часов, что также недолго, если сравнивать, например, с подвесными потолками или даже обычной покраской ;
- за счет быстрого монтажа и отсутствия мокрых процессов установить натяжной потолок можно не только во время выполнения ремонта, но и тогда, когда хочется просто обновить интерьер;
- нет необходимости тщательно подготавливать поверхность основного потолка – главное, чтобы с него не сыпалась штукатурка. Натяжная конструкция – идеальный вариант для квартир, где потолок имеет массу дефектов, устранять которые придется очень долго;
- между потолком и натяжной конструкций будет небольшое пространство, которое можно использовать, чтобы спрятать провода и прочие коммуникации ;
- пожаробезопасность (некоторых типов) и безопасность для здоровья;
- высокая долговечность;
- простота ухода.

Теперь что касается минусов . Прежде всего, это цена . Нельзя сказать, что такая конструкция обойдется уж слишком дорого, но все же дороже, например, поклейки обоев или монтажа пенополистирольной плитки . Еще один нюанс – конструкция украдет немного высоты, около 5 см. Провести монтаж своими руками не получится – понадобится помощь специалистов.
Наверное, натяжной потолок можно назвать наиболее универсальным способом отделки как по разнообразию, так и по соотношению плюсов и минусов. Теперь переходим к самому интересному – анализу существующих предложений на рынке, чтобы, наконец, определиться, какой натяжной потолок лучше выбрать.
Монтаж натяжного потолка своими руками. Содержание:
Если хотите иметь идеально ровный потолок быстро и без пыли — выход один — сделать натяжной потолок. Саму пленку вам вряд ли получится изготовить, а вот натянуть готовую самостоятельно возможно. Это может стать актуальным де-нибудь далеко от города, куда монтажники ехать не станут или их приезд будет слишком дорого стоить. В этом случае установка натяжного потолка своими руками — выход из положения.

Один из вариантов дизайна натяжного потолка
Виды, их сравнительная характеристика
Натяжные потолки есть двух видов: из пленки ПВХ и ткани. Отличаются они по свойствам и внешнему виду. Пленка не пропускает воду, что в квартире может служить страховкой от потопа сверху. Но гарантий того, что она выдержит вес нет. К тому же в пленке есть отверстия под светильники. Этот факт — это только с»побочный эффект», который дает материал, как и то, что он не пропускает пары и воздух.
Плюсом тканевых потолков является именно их возможность пропускать воздух и водяные пары. Это важно, например, для деревянного дома, где это качество востребовано. Можно в брусовом или бревенчатом доме делать и потолки из ПВХ пленки, но из-за разницы температур или давлений могут на ней появляться складки и морщины. Решение есть — тщательнее заделать щели, которые в таких зданиях есть всегда, и поставить вентиляционную решетку (или несколько), которая объединит пространство снизу и сверху, устранив неприятное явление.

Пример ассортимента цветов пленок
Второй плюс тканевых потолков — их большая ширина. Полотна бывают до 4-5 метров. Можно найти и 6 метровые, но по спецзаказу и соответствующей — специальной — цене. Тем не менее, для большинства помещений и такой ширины хватает за глаза. Потому еще этот тип часто называют бесшовными: нет нужды сшивать полотна.
Минус тканевых натяжных потолков — их более высокая стоимость, а также более ограниченный выбор цветов. Зато фактур намного больше: есть под кожу, бархат, имитация матового стекла и другие. Также на таком основании отлично смотрится фотопечать любого типа. Но если вы хотите яркий глянец, он может быть только в пленке ПВХ. У тканого поверхность или матовая, или слегка отблескивающая поверхность.

Натяжной потолок из фактурной ткани (стены тоже отделаны по той же технологии)
С ярким глянцем, кстати, нужно быть аккуратными. Он, конечно, зрительно делает помещение выше. За счет отражения света и предметов. Но именно отражение и может сыграть с вами шутку. В потолке отражается все. И то, что лежит на шкафах тоже. И мусор и пыль. Буквально все. Так что это тоже учитывайте.
Еще один параметр сравнения — температурный режим эксплуатации. Натяжной потолок ПВХ можно эксплуатировать только при плюсовых температурах. При 0°C он становится хрупким, после -40°C разрушается. Если вы установите такой потолок в неотапливаемом помещении, он, может, зиму-другую и переживет (если двери резко в выстывшем доме открывать не будут). Но потом неминуемо порвется. Тканевые натяжные потолки к температурам нетребовательны, так что их можно и морозить.
Пошаговый монтаж натяжных потолков. Методы крепления натяжного полотна.
Но чтобы установить натяжной потолок одного полотна недостаточно, нужен еще профиль. Он может быть пластиковым или алюминиевый. Выпускается всего три вида профиля:
- стеновой,
- потолочный,
- универсальный.
Их названия говорят сами за себя, то есть, он крепится или к стене, или к потолку. А уже к нему полотно крепится клиновым, гарпунным или штапиковым способом.

Наиболее популярный из них – гарпунный метод, когда по краям полотна на специальном станке приваривается гарпун – своеобразный крючок из того же пленочного полотна. Этот крючок при монтаже потолка цепляется за профиль и натягивает полотно. При таком способе крепления полотно натяжного потолка должно быть идеально выверено, тщательно измерено и раскроено. Так, размер пленки должен получиться примерно на семь процентов меньше размеров потолка.

При клиновом способе монтажа размер полотна натяжного потолка должен быть больше вашего потолка. Поэтому этот метод не требует тщательных замеров и выкройки. В этом случае пленка потолка натягивается, а лишнее затем просто отрезается.

При кулачковом или штапиковом способе происходит аналогичная ситуация, только пленка крепится к профилю с помощью специальной ленты. Она то и обеспечивает натяжение потолка.

При установке натяжных потолков своими руками обычно применяется гарпунный метод, поскольку штапиковый и клиновый методы монтажа потолка не позволяют в будущем сделать его демонтаж.
Монтаж натяжного потолка со скрытым карнизом. Установка
Для монтажа ниши следует заготовить такие материалы:
- алюминиевую или пластиковую консоль для штор. Материал выбирают в зависимости от массы подвешиваемой ткани;
- деревянный брус сечением 50×50 мм (или больше) по длине оконной стены. Можно купить сосну, только сухую и без сучков. Твердые породы брать не нужно, так как их прочность будет излишней, а весят они много;
- усиленные металлические уголки с полкой не меньше 100 мм. Уголки должны быть мощными, так как на них будет приходиться вся нагрузка. Одной стороной они будут крепиться к потолку, а к другой будет прикручиваться брус;
- потолочный профиль для гарпунной системы длиной, равной длине бруса;
- если полотно будет крепиться не по нижнему краю бруса, а с внутренней стороны ниши с перегибом, понадобится отбойник. Его прикручивают в уровень с углом бруса. В этой роли может выступить профиль для натяжных систем.
- Стеновой профиль для натяжного полотна на оставшиеся три стены комнаты.
Для монтажа уголков, профиля и бруса понадобятся дюбеля и саморезы.
Порядок монтажа выглядит так:
- Вначале определяют уровень натяжного потолка в соответствии с имеющимися светильниками.
- Затем с учетом батарей и подоконника определяют место крепления шторы. Ткань должна свисать свободно, не касаясь подоконника или радиаторов, поэтому делают отступ для тюля с запасом в 3-5 см.
- Приготовленный карниз прикладывают к потолку и отмечают его край, дальний от окна. По этой лини крепиться брус ступени.
- Затем от линии края карниза отступают расстояние, равное ширине бруса. По ней к основанию монтируют уголки.
- Учитывая силу натяжения полотна, уголки крутят с шагом 70-80 см. К основанию их крепят дюбелями на 2 (или даже 3) анкера.
- На брус прикручивают багет для полотна. В углах багет не стыкуют, а прикручивают цельногнутые фрагменты.
- По уровню, на котором будет натяжное полотно, натягивают нить, и по ней к уголкам прикручивают брус. Поверхность бруска, которая будет видна с внутренней стороны ниши, окрашивают масляной краской.
В завершении останется прикрутить стеновой багет и можно замерять полотно.
Важно! Если сделать монтаж с перегибом, то ниша будет не видна, даже если встать под ней.

Вариант своими руками с перегибом
Скрытый монтаж с перегибом выполняется по такому же принципу, только к брусу привинчивают отбойник. Профиль под гарпун полотна прикручивают к основанию в нише так, как изображено на фото выше.