Расстояние от потолка до натяжного потолка при монтаже. На сколько сантиметров можно пустить натяжной потолок в высоком помещении?
- Расстояние от потолка до натяжного потолка при монтаже. На сколько сантиметров можно пустить натяжной потолок в высоком помещении?
- Расстояние от натяжного потолка до кондиционера. Общая информация
- Минимальное расстояние подвесного потолка армстронг. Как устроен подвесной потолок «Армстронг»
- Высота натяжного потолка с точечными светильниками. Что собой представляют
Расстояние от потолка до натяжного потолка при монтаже. На сколько сантиметров можно пустить натяжной потолок в высоком помещении?
Очень часто обладатели домов и квартир с высокими потолками мечтают сделать свое жилье более комфортным, поэтому пытаются найти способ отделки, который снизит высоту помещения. Также такой прием позволяет сократить затраты на отопление, ведь прогреть комнату с низким потолком намного проще и дешевле, чем помещение, высота которого превышает 3 метра. Снижение высоты потолка сделает любую жилую комнату более уютной и камерной. Поэтому владельцы таких помещений задаются вопросом, какое максимальное расстояние от чернового потолка до полотна натяжного потолка можно создать.
В действительности, опустить натяжную конструкцию можно абсолютно на любую высоту. В этом случае необходимо использовать стеновые профили, которые будут установлены по периметру помещения в соответствии с нужным уровнем. Расстояние между потолками может достигать более 10 сантиметров. Однако при монтаже такой конструкции возникают некоторые трудности. Дело в том, что если вы планируете установить в потолок люстру или точечные светильники, необходимо создать специальные закладные, которые крепятся к черновому перекрытию. Эти элементы и будут удерживать осветительный прибор. Платформа для светильника должна располагаться в непосредственной близости к полотну натяжного потолка. Если высоты закладной будет недостаточной для соблюдения этого требования, придется создавать дополнительную конструкцию из деревянного бруса.

В остальном, опустить натяжной потолок можно абсолютно на любую высоту. Это позволяет не только сделать высокое помещение более уютным, но и скрыть достаточно объемные коммуникации, проходящие под потолком. Также снижение высоты необходимо, если на черновом перекрытии присутствуют существенные неровности и ступенчатые переходы между плитами.
Расстояние от натяжного потолка до кондиционера. Общая информация
Современные клиенты сервисных центров понимают особенности установки кондиционера и поэтому планируют монтаж еще на этапе черновой отделки квартиры. В идеале, кондиционер должен иметь возможность свободно забирать воздух сверху и при этом не доставлять пользователю дискомфорт при использовании. Возможно ли это?
Да, да и еще раз да! Но нужно включить голову и учесть все нюансы. У клиента нужно спросить, какая планируется высота чистового потолка, будут ли плинтусы/багеты, какова их ширина и пр. Расстояние от потолка до кондиционера нельзя планировать "на глаз", требуется грамотный расчет на бумаге с учетом всех дизайнерских задумок.
А что делать, если планируется установка аппарата в комнате с выполненным ремонтом? Конечно, такой вариант не рекомендуется для клиентов, но все же подобные ситуации встречаются довольно часто. В этом случае нужно учесть, какие изменения могут произойти с потолком при будущем проведении ремонта.
Например, сейчас в квартире потолок покрашен. А в будущем владельцы могут захотеть сделать натяжной потолок. И что делать в таком случае, если кондиционер смонтирован слишком высоко и направляющие натяжного потолка будут просто упираться в настенный блок?
Придется демонтировать кондиционер и вешать его ниже. Клиент потратит массу сил, времени и денег. Поэтому при установке блока в помещении с готовым ремонтом важно учесть будущие дизайнерские решения, которые могут прийти в голову хозяевам квартиры.
Если не учитывать эти нюансы, можно лишиться существенной суммы денег. Потому что рано или поздно придется опускать или, наоборот, повышать кондиционер. А подобные работы стоят недешево, нужно произвести и рассчитать оптимальное расстояние, а затем снова повесить аппарат.
Теперь, когда мы разобрались с основными особенностями, перейдем к сути. Давайте рассмотрим, какое расстояние от кондиционеров до потолка можно считать оптимальным, и почему.
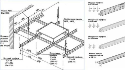
Минимальное расстояние подвесного потолка армстронг. Как устроен подвесной потолок «Армстронг»
Подвесной поток «Армстронг» – это запатентованная система, которая представляет собой следующую простую, но эффективную конструкцию:
- Направляющие Т-образного сечения, которые монтируются в монтажном горизонте в ортогональном направлении по отношению друг к другу, образуя прямоугольники и квадраты с габаритами от 300 х 300 мм до 600 х 1200 мм для монтажа облицовочных плиток.
- Профильные направляющие, которые устанавливаются между продольными несущими элементами. Имеют тот же Т-образный профиль, но не снабжаются отверстиями для подвесов. Монтируются на выступающие полки продольных профилей.

- Угловые профили, которые обрамляют всю подсистему. Крепятся к стенам по периметру комнаты. Представляют собой металлические уголки с полимерным покрытием и отверстиями для монтажа к строительной конструкции на саморезы.
- Подвесы для фиксации профильных элементов к низу плиты перекрытия. Оснащаются крючками-зацепами, а также резьбовыми сопряжениями для корректировки высоты монтажного горизонта.
- Главный конструктивный элемент подвесного потолка «Армстронг» – это плитки, которые образуют декоративную поверхность конструкции. Укладываются в каждую клетку, образованную направляющими, с обратной стороны подсистемы.
- Лампы, диффузоры для вентиляции, динамики для радио оповещения и другие приборы, которые должны монтироваться в помещениях для нормальной эксплуатации, согласно проекту и требованиям СНиП.

Со времён изобретения и внедрения данной системы, принципиальная схема устройства потолка «Армстронг» практически не менялась. С годами совершенствовались лишь материалы направляющих, типы осветительных приборов, а также сами декоративные плитки.
Высота натяжного потолка с точечными светильниками. Что собой представляют
Точечный светильник представляет собой небольшое по размерам осветительное устройство, в который встраивается одна или несколько лампочек (галогеновая, светодиодная, лампа накаливания). Благодаря особой конструкции такие устройства сегодня активно используются для освещения самых разнообразных помещений. Но наибольшую популярность они приобрели в домашней подсветке. Это небольшие приспособления, которые имеют незначительный угол рассеивания света. В связи с этим их нужно использовать не поодиночке, а группами. При этом размещать их можно как на одинаковом расстоянии друг от друга, так объединять в группы.

Точечные светильники в интерьере дома
Такие осветительные приспособления применяются в доме для:
- создания качественного освещения в помещении;
- декоративного украшения потолка;
Обратите внимание! Точечные светильники могут иметь самые различный внешний вид. Поэтому они идеально впишутся в любые интерьеры.
- визуального изменения пространства. Например, используя такие лампы можно визуально расширить пространство комнаты, а также зонировать его на определенные области.
Такого рода осветительные установки могут использоваться под различные виды потолков: подвесных, натяжных и из гипсокартона. При этом какой тип светильника выбрать в каждом отдельном случае зависит как от особенностей перекрытия, так и от вида самого прибора. Поэтому, чтобы правильно выбрать не только точечные светильники, но и их размеры, необходимо разбираться в их видах.